Torna alla lista
Descrizione immobile

Brescia, Via Cefalonia, Ufficio a reddito con resa annuale lorda del 6%.
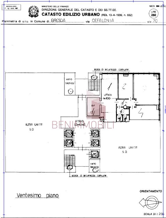
All'interno del Crystal Palace, iconico edificio di Brescia di 110 metri di altezza composto da 27 piani fuori terra più tre piani interrati, ufficio di 178 mq posizionato al 20° piano panoramico, servito da quadruplo ascensore.
Internamente risulta così composto: ingresso con reception con annessa zona ad uso ripostiglio, quattro stanze operative con vista panoramica, due bagni completi con disimpegno.
Completano la soluzione 3 posti auto ed una stanza ad uso archivio al piano interrato.
L'immobile è attualmente locato con canone di € 19.200 annui ed il reddito è garantito dall'ottimo profilo del conduttore. Immobile venduto ad imposta di registro.

CLASSE ENERGETICA: A1 – 321.16 kWh/m²/anno.

Responsabile incaricato: Stefano Liberini 3271598532 - liberini@benimmobili.eu

www.benimmobili.eu - 0302428400
BENIMMOBILI è situata al Crystal Palace, Via Cefalonia 70, nel cuore di Brescia Due.
BENIMMOBILI è il tuo punto di riferimento nel mercato residenziale, grazie alla presenza di Competenze Specifiche del settore, al fine di offrire soluzioni personalizzate, avvalendosi della professionalità di Agenti e Consulenti Immobiliari Specializzati nella locazione e nella vendita di Immobili Residenziali, Nuove Realizzazioni, Immobili di Lusso e Pregio, Immobili all’Estero e Investimenti Immobiliari..

LUN – VEN 9.00 / 12.30 - 14.30 / 18.30

Caratteristiche immobile

Zona

Villaggio Sereno, Folzano, Lamarmora

Data immobile

20/04/2024

Contratto

Vendita

Prezzo

320.000 €

Tipologia

Ufficio

Superficie

203 m2

Locali

4

Bagni

1

Stato

In buone condizioni

Classe energetica

A1 321,16 KWH/MQ2

Riscaldamento

Autonomo

Mappa

Ufficio

Brescia

Via Cefalonia 70

320.000 €

Richiedi informazioni

Cliccando Invia, dichiaro di aver preso visione dell'informativa privacy

Immobili simili
Trilocale
Via Lamarmora 270, Brescia
315.000 €
128128 m2
33 locali
22 bagni
A1
Loft
Via Marco Enrico Bossi 12, Brescia
319.000 €
145145 m2
33 locali
22 bagni
C
Ufficio
Via Corsica 80, Brescia
3.400 € al mese
269269 m2
22 locali
22 bagni
E